Casa indipendente in vendita

Gussago, Via Fontana - Navezze
€ 325.000
3 locali 3 locali
250 Mq 250 Mq
1 bagno 1 bagno

Casa indipendente in vendita

Gussago, Via Fontana - Navezze

Descrizione annuncio

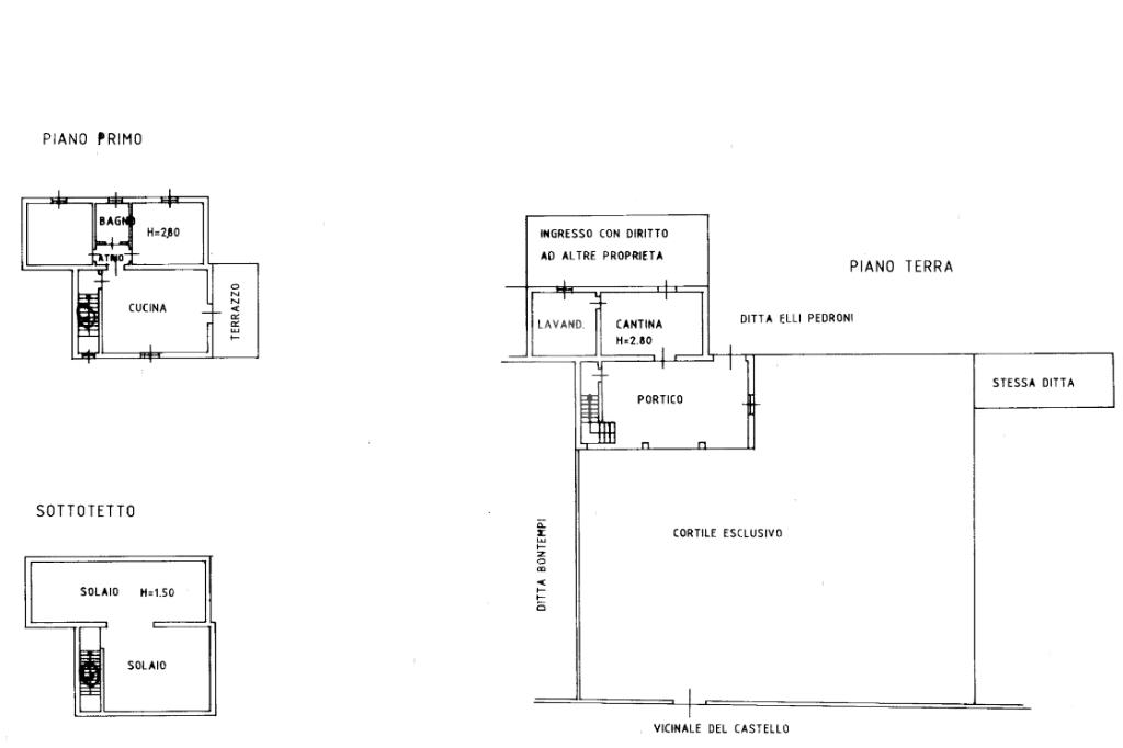
Ubicata nella frazione di Navezze di Gussago, proponiamo soluzione indipendente ristrutturata ex novo e adibita ad abitazione nella prima metà degli anni '80.

La proprietà, caratterizzata da doppio ingresso su due strade a fondo chiuso e a basso traffico, insiste su un lotto di circa 600 mq con ottima esposizione a Sud.
L'abitazione, di circa 150 mq, si sviluppa su due livelli e presenta spazi ampi e ben distribuiti.

Al piano terra troviamo un portico vivibile e un vano tecnico adibito a cantina/lavanderia, elemento tipico delle ristrutturazioni dell'epoca.
Il piano superiore ospita un appartamento trilocale con zona giorno open space cucina-soggiorno, dotata di accesso a un terrazzo di circa 20 mq.

La zona notte è composta da due camere matrimoniali e da un bagno finestrato con vasca.
Una scala interna conduce infine al sottotetto di proprietà.

Elemento di particolare pregio è il giardino esclusivo di circa 500 mq, che circonda la casa e crea un'oasi di privacy e tranquillità, difficilmente reperibile nel cuore di Gussago.

L'immobile si presenta nello stato originario degli anni '80, con impianti e serramenti da rinnovare, rappresentando una soluzione ideale per chi desidera personalizzare gli spazi secondo le proprie esigenze.

Mostra tutto

Nelle vicinanze

Trasporto pubblico Trasporto pubblico
Via Bazzani 6 capolinea
Via Bazzani 6 capolinea
890 m
Via IV Novembre
Via IV Novembre
1,1 Km
Scuole Scuole
Scuola Primaria Gianni Rodari
330 m
Scuola Secondaria di Primo Grado A. Venturelli
900 m
Scuola Primaria Don Lorenzo Milani
1,2 Km
Scuola Primaria Aldo Moro
1,5 Km
Scuola dell'Infanzia Nava
1,8 Km
Farmacia Farmacia
Farmacia Antonelli
960 m
Farmacia Tosini
1,7 Km
Farmacia
2,9 Km
Ospedali Ospedali
Ospedale e Casa di Riposo Nobile Paolo Richiedei
1,2 Km
Guardia Medica
1,3 Km
Supermercati Supermercati
Italmark
1,5 Km
Familia Superstore
2,1 Km
IperSimply
2,1 Km
Negozi Negozi
Negozi
550 m
Panificio F. Moretti
550 m
Bar Bar
Bar
2,0 Km
Ristoranti Ristoranti
Osteria dell'Angelo
150 m
Antica Trattoria Piè del Dos
490 m
Il Gabbiano
610 m
Trattoria El Magher
620 m
Trattoria Cascina Bombaglio
940 m
Mostra tutto

Caratteristiche

Rif.:
61167869
Piano:
Su più livelli di 3
Totale piani:
3
Posti auto:
1
Terrazzi:
1
Camere da letto:
2
Mostra tutto
Prezzo Prezzo
€ 325.000
Rata mutuo Rata mutuo
€ 1.510 / mese
Spese annue Spese annue
€ 0
Proponi il tuo prezzoProponi il tuo prezzo

Classe Energetica

Questo immobile è esente da classe energetica
Anno di costruzione:
1984
Riscaldamento:
Autonomo
Tipo impianto:
A radiatori
Tipo alimentazione:
Metano

Ti interessa visionare l'immobile?

Fissa un appuntamento  Fissa un appuntamento

Richiedi informazioni

Clicca su Leggi per aprire l'informativa
* Questi campi sono obbligatori

Calcola il tuo mutuo

Semplice e senza impegno
Anticipo

( % )
Mutuo

( % )

pochi semplici passi

inserisci i tuoi dati
Questionario completato
Grazie per aver richiesto un appuntamento senza impegno con un nostro Consulente del Credito e Assicurativo.

Hai inserito correttamente tutti i dati necessari e a breve riceverai una e-mail con un link da convalidare per inviare i tuoi dati.
Affiliato
Studio Gussago Srl
Via Dante Alighieri, 16 25064 Gussago (BS)

Il nostro staff


  • Francesca Guerreschi
    Collaboratrice

  • Angelica Martinelli
    Coordinatrice

  • Maurizio Pulvirenti
    Affiliato

  • Diego Zadra
    Collaboratore
Via Dante Alighieri, 16 25064 Gussago (BS)
Zona: Franciacorta-Gussago-Cellatica
Mostra su mappa
Orari: Lunedì - Venerdì: 9.00|12.30 - 14.30|19.30 - Sabato: 9.00|12.30 - 14.30|16.00
Affiliato
Studio Gussago Srl
Via Dante Alighieri, 16 25064 Gussago (BS)

2026 Tecnocasa Franchising S.p.A. - P. IVA 08365160152 - Via Monte Bianco 60/A 20089 Rozzano (MI). Ogni agenzia ha un proprio titolare ed è autonoma. Privacy policy | Policy utilizzo | Cookie policy