Villa a schiera in vendita

Gussago, Via Don Bortolo Cotti - Ronco
€ 249.000
4 locali 4 locali
250 Mq 250 Mq
2 bagni 2 bagni

Villa a schiera in vendita

Gussago, Via Don Bortolo Cotti - Ronco

Descrizione annuncio

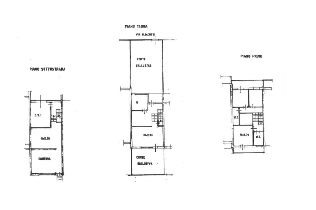
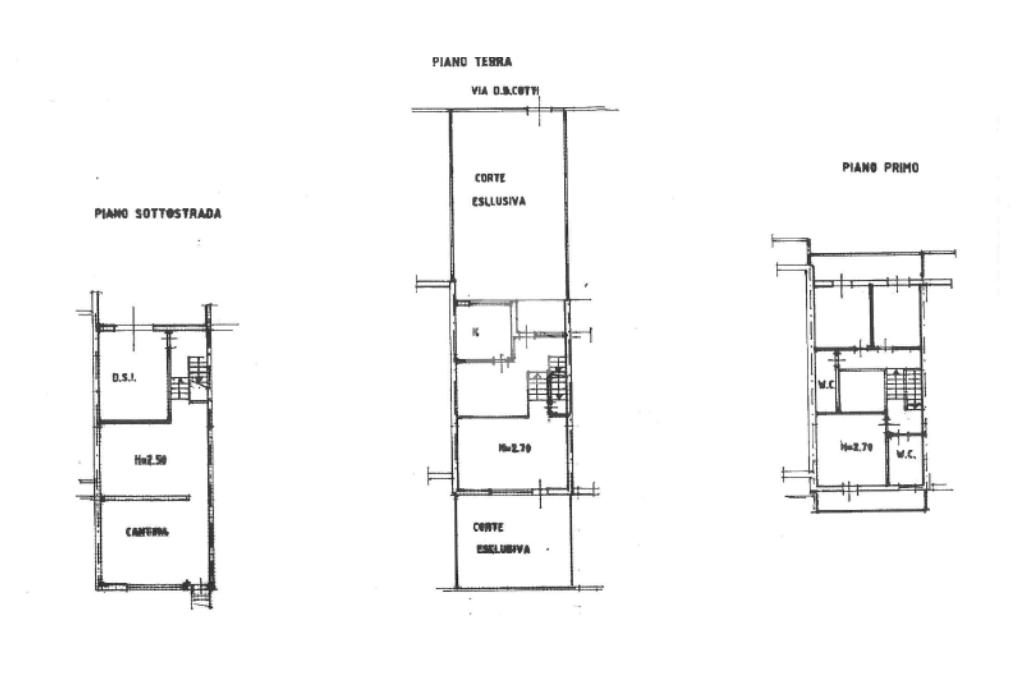
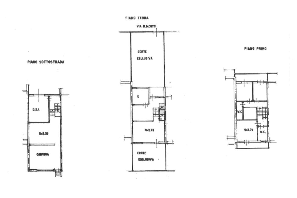
Posizionata in zona Ronco di Gussago, proponiamo in vendita questa villetta a schiera edificata alla fine degli anni ‘80.

L'immobile si sviluppa su più livelli ammezzati, ed è provvisto di giardino privato di circa 350 mq fronte e retro.

L'abitazione si apre al piano terra sulla zona giorno di buone metrature dove troviamo sala da pranzo, abbellita e ben illuminata da un lucernario tutta altezza e cucina separata. Scendendo qualche gradino invece trova la sua posizione la vera e propria zona living che concede un accesso sul giardino sul retro tramite un’ampia vetrata che dona luminosità allo spazio.

Quest’ultimo, oltre all’ampio spazio verde dove si può pensare di poter collocare una piscina interrata, gode di una terrazza di circa 30 metri; ideale per un soggiorno da esterni.

La zona notte si distribuisce su due livelli; al primo, ammezzato, sono presenti un servizio finestrato con vasca e la camera padronale.

Il secondo livello, invece, viene occupato da una stanza doppia ed una singola collegate fra di loro da un balcone, oltre al secondo servizio igienico con doccia a completare.

Al piano semi interrato, il cui accesso avviene sempre attraverso una scala interna direttamente collegata al piano terra, la proprietà è completata da una taverna di circa 60mt con sfogo diretto sul giardino.

Sempre al piano è presente un'autorimessa singola ampia.

Internamente la soluzione si trova allo stato originario di costruzione per quanto riguarda la finiture; mentre l'impianto elettrico è stato revisionato nel 2007. E’ inoltre presente impianto di climatizzazione sia nella zona giorno che nella zona notte ed impianto d’allarme sostituito nel 2014.

Esternamente la villetta si presenta in buone condizioni, con imposte in legno, inferiate e infissi in legno doppio vetro ed livello condominiale è stato recentemente sistemato il tetto.

Le spese di gestione condominiale infine sono di circa 700 euro/anno.

Mostra tutto

Nelle vicinanze

Trasporto pubblico Trasporto pubblico
Via Bazzani 6 capolinea
Via Bazzani 6 capolinea
1,4 Km
Via IV Novembre
Via IV Novembre
1,6 Km
Ricariche auto elettriche Ricariche auto elettriche
EnelX EVA+ Franciacorta Outlet Village
2,5 Km
Scuole Scuole
Scuola Primaria Don Lorenzo Milani
140 m
Scuola Primaria Gianni Rodari
1,4 Km
Scuola dell'Infanzia Nava
1,5 Km
Scuola Secondaria di Primo Grado A. Venturelli
1,6 Km
Scuole
1,8 Km
Farmacia Farmacia
Farmacia Antonelli
1,3 Km
Farmacia Tosini
1,7 Km
Farmacia San Dionigi
2,2 Km
Ospedali Ospedali
Ospedale e Casa di Riposo Nobile Paolo Richiedei
1,3 Km
Guardia Medica
1,4 Km
Supermercati Supermercati
Italmark
1,6 Km
Simply Market
2,2 Km
IperSimply
2,2 Km
Coop Vicinato Lombardia Società Cooperativa
2,3 Km
Familia Superstore
2,3 Km
Negozi Negozi
Panificio F. Moretti
1,6 Km
Negozi
1,6 Km
Outlet Dolciario
2,2 Km
Il Girasole
2,3 Km
CMP
2,3 Km
Bar Bar
Bar
1,7 Km
Autogrill
2,3 Km
Bar Olimpia
2,3 Km
Bar Al Chiosco
2,6 Km
Ristoranti Ristoranti
Trattoria Cascina Bombaglio
540 m
Il Gabbiano
1,2 Km
Spazio Pizza
1,3 Km
Osteria dell'Angelo
1,4 Km
Agriturismo Casa Adea
1,5 Km
Mostra tutto

Caratteristiche

Rif.:
61111433
Piano:
Su più livelli di 2
Totale piani:
2
Box:
1
Posti auto:
2
Balconi:
2
Mostra tutto
Prezzo Prezzo
€ 249.000
Rata mutuo Rata mutuo
€ 1.173 / mese
Spese annue Spese annue
€ 700
Proponi il tuo prezzoProponi il tuo prezzo
Immobile valutato con T·Valuta

Classe Energetica

Questo immobile è esente da classe energetica
Anno di costruzione:
1988
Riscaldamento:
Autonomo
Tipo impianto:
A radiatori
Tipo alimentazione:
Metano

Ti interessa visionare l'immobile?

Fissa un appuntamento  Fissa un appuntamento

Richiedi informazioni

Clicca su Leggi per aprire l'informativa
* Questi campi sono obbligatori

Calcola il tuo mutuo

Semplice e senza impegno
Anticipo

( % )
Mutuo

( % )

pochi semplici passi

inserisci i tuoi dati
Questionario completato
Grazie per aver richiesto un appuntamento senza impegno con un nostro Consulente del Credito e Assicurativo.

Hai inserito correttamente tutti i dati necessari e a breve riceverai una e-mail con un link da convalidare per inviare i tuoi dati.
Affiliato
Studio Gussago Srl
Via Dante Alighieri, 16 25064 Gussago (BS)

Il nostro staff


  • Francesca Guerreschi
    Collaboratrice

  • Angelica Martinelli
    Coordinatrice

  • Maurizio Pulvirenti
    Affiliato

  • Diego Zadra
    Collaboratore
Via Dante Alighieri, 16 25064 Gussago (BS)
Zona: Franciacorta-Gussago-Cellatica
Mostra su mappa
Orari: Lunedì - Venerdì: 9.00|12.30 - 14.30|19.30 - Sabato: 9.00|12.30 - 14.30|16.00
Affiliato
Studio Gussago Srl
Via Dante Alighieri, 16 25064 Gussago (BS)

2026 Tecnocasa Franchising S.p.A. - P. IVA 08365160152 - Via Monte Bianco 60/A 20089 Rozzano (MI). Ogni agenzia ha un proprio titolare ed è autonoma. Privacy policy | Policy utilizzo | Cookie policy