Villa a schiera in vendita

Gussago, Via Staffoli - Villa
€ 450.000
4 locali 4 locali
220 Mq 220 Mq
2 bagni 2 bagni

Villa a schiera in vendita

Gussago, Via Staffoli - Villa

Descrizione annuncio

Posizionata in località Sale di Gussago, proponiamo in vendita questa villetta a schiera di buone metrature facente parte di un contesto edificato nella seconda metà degli anni ’80.

Internamente la soluzione si trova ristrutturata a cavallo tra la fine degli anni ’90 e l’inizio degli anni 2000 a livello di impiantistica e finiture interne. Negli anni è poi stato inserito un impianto fotovoltaico da 3 kw. Non è presente batteria di accumulo.

L'immobile, che nella sua ubicazione trova uno dei principali punti di forza, si sviluppa su più livelli ed è impreziosito da un giardino privato di circa 180 mq disposto fronte e retro che concede altresi un doppio ingresso alla proprietà.

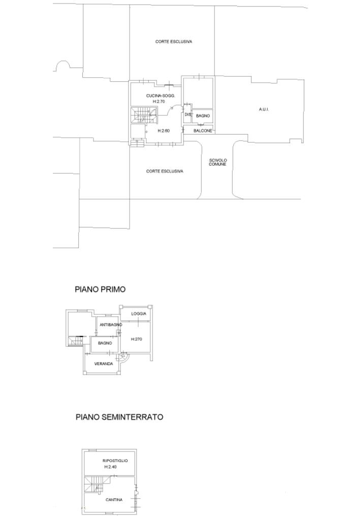
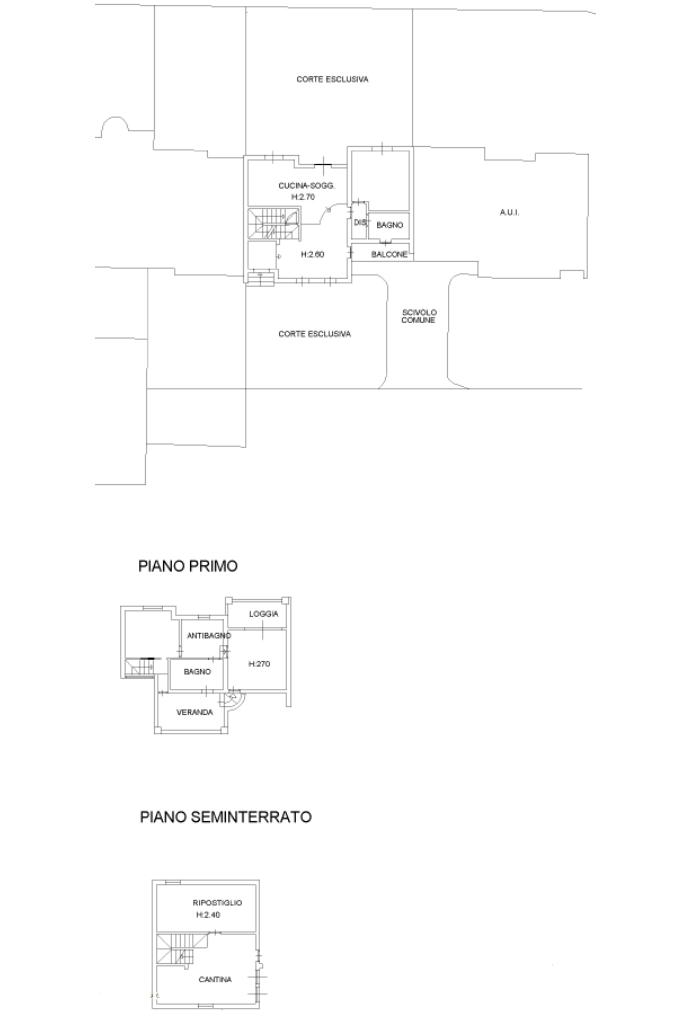
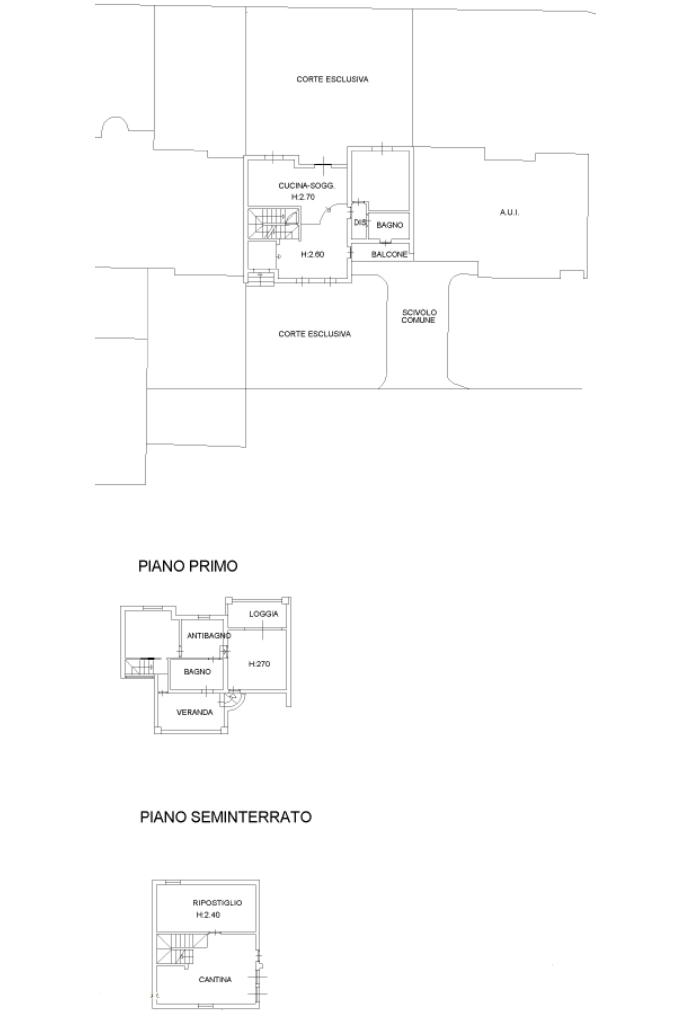
L'abitazione, si apre al piano terra sulla zona giorno di buone metrature con una pianta aperta, ma facilmente divisibile, avvalorata dalla presenza di un termo camino che riscalda tutto il living, oltre a portare calore anche al piano primo tramite delle bocchette di ventilazione canalizzata in tutti i locali del piano superiore.

La cucina a vista, che fa da padrona al piano, è stata realizzata in muratura e potrebbe essere facilmente separabile dal resto della zona giorno.

Il doppio affaccio sui giardini tramite porte finestre, da luminosità e valorizza la zona giorno oltre a dare la libertà di scelta per il punto di accesso alla proprietà.

Il giardino è inoltre valorizzato da un patio adatto per un soggiorno da esterni per le serate estive.

Il piano terra è inoltre occupato anche da una prima camera matrimoniale ed un servizio igienico con doccia e vano lavanderia.

Salendo ai piani superiori, troviamo la zona notte, dove sono presenti due camere da letto matrimoniali, di cui una con balcone, ed una veranda all'inglese ad oggi utilizzata come camera da letto singola. Parte degli spazi a questo livello ha come caratteristica delle travi a vista in quando ricavato da un ampliamento della proprietà per recupero di cubatura.

Completa il piano un servizio igienico di generose metrature allestito da vasca idromassaggio con sistema di generazione di vapore, mobile lavabo doppio ed una zona dedicata ad armadiature.

Al piano interrato, il cui accesso avviene sempre attraverso una scala interna direttamente collegata al piano terra, la proprietà è completata da una taverna ad oggi usata come deposito ed un ulteriore vano cantina. Sempre al piano interrato è presente un'autorimessa singola ampia con basculante elettrica e impianto di ricarica per auto elettrica.

Il riscaldamento è autonomo a radiatori suddiviso per zone, è inoltre presente impianto di climatizzazione su ogni livello della proprietà.

La soluzione è inoltre protetta da inferiate a tutte le finestre e porte finestre.

Punto di forza del complesso abitativo è la presenza di ulteriori posteggi pubblici, la vicinanza alla scuole che la rende appetibile per le famiglie e la strepitosa vicinanza al centro di Gussago.

Esternamente la villetta si presenta in buone condizioni, con imposte in legno e infissi in legno doppio vetro.

Gli oneri di gestione condominiale ammontano a ca 1000 euro/anno.

Mostra tutto

Nelle vicinanze

Trasporto pubblico Trasporto pubblico
Via IV Novembre 142
Via IV Novembre 142
540 m
Via G. Briggia
Via G. Briggia
660 m
Ricariche auto elettriche Ricariche auto elettriche
EnelX EVA+ Franciacorta Outlet Village
2,4 Km
Scuole Scuole
Scuola dell'Infanzia Nava
80 m
Scuole
410 m
Scuola Primaria Aldo Moro
1,1 Km
Scuola Secondaria di Primo Grado A. Venturelli
1,2 Km
Scuola Primaria Don Lorenzo Milani
1,5 Km
Farmacia Farmacia
Farmacia Tosini
520 m
Farmacia Antonelli
900 m
Farmacia
2,4 Km
Ospedali Ospedali
Guardia Medica
590 m
Ospedale e Casa di Riposo Nobile Paolo Richiedei
650 m
Supermercati Supermercati
Italmark
530 m
IperSimply
780 m
Familia Superstore
1,0 Km
Simply Market
2,4 Km
Negozi Negozi
Outlet Dolciario
2,2 Km
Panificio F. Moretti
2,4 Km
Negozi
2,4 Km
CMP
2,4 Km
Under Armour
2,4 Km
Bar Bar
Bar
240 m
Autogrill
2,4 Km
Ristoranti Ristoranti
Risto-Pub Cantagallo
530 m
Da Dina
540 m
Trattoria Nuovo Rustichello
1,1 Km
Ristorante Mi Sushi
1,2 Km
Il Gabbiano
1,2 Km
Mostra tutto

Caratteristiche

Rif.:
61127966
Piano:
Su più livelli di 2
Totale piani:
2
Box:
1
Balconi:
1
Terrazzi:
1
Mostra tutto
Prezzo Prezzo
€ 450.000
Rata mutuo Rata mutuo
€ 2.120 / mese
Spese annue Spese annue
€ 1.000
Proponi il tuo prezzoProponi il tuo prezzo
Immobile valutato con T·Valuta

Classe Energetica

D
D
D
D
D
D
D
D
D
EP globale non rinnovabile:
159.04 kW h/m² anno
EP globale rinnovabile:
6.02 kW h/m² anno
EP invernale del fabbricato:
EP estiva del fabbricato:
Anno di costruzione:
1986
Riscaldamento:
Autonomo
Tipo impianto:
A radiatori
Tipo alimentazione:
Metano

Ti interessa visionare l'immobile?

Fissa un appuntamento  Fissa un appuntamento

Richiedi informazioni

Clicca su Leggi per aprire l'informativa
* Questi campi sono obbligatori

Calcola il tuo mutuo

Semplice e senza impegno
Anticipo

( % )
Mutuo

( % )

pochi semplici passi

inserisci i tuoi dati
Questionario completato
Grazie per aver richiesto un appuntamento senza impegno con un nostro Consulente del Credito e Assicurativo.

Hai inserito correttamente tutti i dati necessari e a breve riceverai una e-mail con un link da convalidare per inviare i tuoi dati.
Affiliato
Studio Gussago Srl
Via Dante Alighieri, 16 25064 Gussago (BS)

Il nostro staff


  • Francesca Guerreschi
    Collaboratrice

  • Angelica Martinelli
    Coordinatrice

  • Maurizio Pulvirenti
    Affiliato

  • Diego Zadra
    Collaboratore
Via Dante Alighieri, 16 25064 Gussago (BS)
Zona: Franciacorta-Gussago-Cellatica
Mostra su mappa
Orari: Lunedì - Venerdì: 9.00|12.30 - 14.30|19.30 - Sabato: 9.00|12.30 - 14.30|16.00
Affiliato
Studio Gussago Srl
Via Dante Alighieri, 16 25064 Gussago (BS)

2026 Tecnocasa Franchising S.p.A. - P. IVA 08365160152 - Via Monte Bianco 60/A 20089 Rozzano (MI). Ogni agenzia ha un proprio titolare ed è autonoma. Privacy policy | Policy utilizzo | Cookie policy