Villa a schiera in vendita

Gussago, Via S. Croce - Croce
€ 435.000
4 locali 4 locali
220 Mq 220 Mq
2 bagni 2 bagni

Villa a schiera in vendita

Gussago, Via S. Croce - Croce

Descrizione annuncio

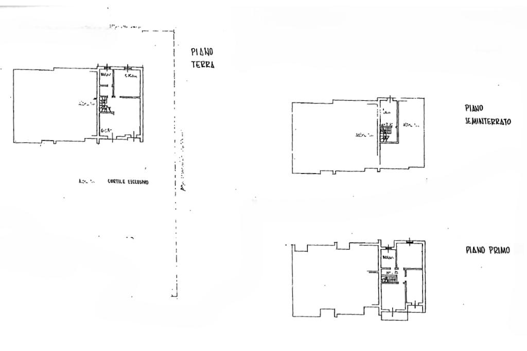
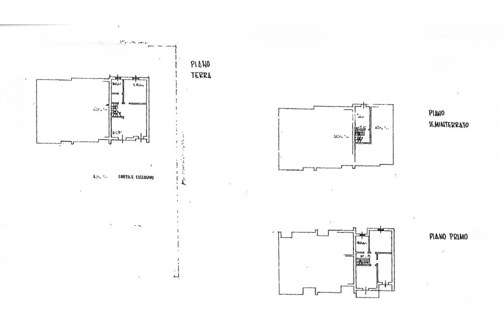
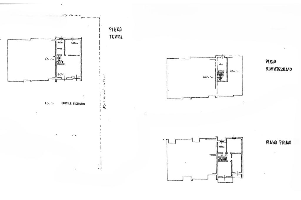
Posizionata in località Pianette di Gussago, proponiamo in vendita questa villetta a schiera di testa in contesto di trifamiliare edificato nella prima metà degli anni ’80 ed allo stato originario di costruzione.

L'immobile, che nella sua ubicazione trova uno dei principali punti di forza, si sviluppa su più livelli ed è impreziosito da un giardino privato di circa 300 mq disposto su due lati, abbellito da alberi ornamentali che concedono alla soluzione abbondante privacy.

Quest’ultimo gode anche di un ampio patio adiacente al soggiorno, adatto per un arredamento da esterni.

L'abitazione, si apre al piano terra sulla zona giorno composta da soggiorno di buone metrature che permette di avere uno spazio fruibile come sala da pranzo e cucina separata ed abitabile.

Il piano è inoltre occupato anche da un servizio igienico finestrato dotato di box doccia ed un ampio disimpegno armadiato funzionale come guardaroba.

Salendo ai piani superiori, troviamo la zona notte, dove sono presenti due camere da letto matrimoniali, di cui una con balcone, ed una camera singola anch’essa servita da balcone privato.

La zona notte è inoltre fornita di un armadio a muro ricavato sopra il vano scala ed un sottotetto non abitabile utile come deposito.

Completa il piano un servizio igienico finestrato di generose metrature allestito di vasca.

Al piano semi interrato, il cui accesso avviene sempre attraverso una scala interna direttamente collegata al piano terra, la proprietà è completata da una taverna con camino e da una vano tecnico/lavanderia che permette di avere un secondo accesso all’abitazione.

Sempre al piano seminterrato è presente un'autorimessa singola ampia, oltre a tre posti auto esterni siti nella propria corte esclusiva che sono posti sul retro dell'abitazione, fronte box, ed uno adiacente all'ingresso principale.

Il riscaldamento è autonomo a radiatori suddiviso per zone, la caldaia è stata sostituita recentemente ed è anche stato inserito un boiler per il riscaldamento dell’acqua calda sanitaria funzionante tramite un impianto fotovoltaico da 3 kw. Non è presente batteria di accumulo.

La soluzione è inoltre protetta da inferiate a tutte le finestre e porte finestre.

Punto di forza del complesso abitativo è la vicinanza alla scuole che la rende appetibile per le famiglie e la strepitosa vicinanza al centro di Gussago.

Esternamente la villetta si presenta in buone condizioni, con imposte in legno e infissi in legno doppio vetro.

L’immobile è privo di oneri di gestione condominiale.

Mostra tutto

Nelle vicinanze

Trasporto pubblico Trasporto pubblico
Via Caporalino 46
Via Caporalino 46
110 m
Via G. Briggia
Via G. Briggia
170 m
Ricariche auto elettriche Ricariche auto elettriche
EnelX EVA+ Franciacorta Outlet Village
2,9 Km
Scuole Scuole
Scuola dell'Infanzia Nava
560 m
Scuole
600 m
Scuola Primaria Aldo Moro
760 m
Scuola Secondaria di Primo Grado A. Venturelli
1,2 Km
Scuola Secondaria di Primo Grado Enrico Mattei
1,6 Km
Farmacia Farmacia
Farmacia Tosini
370 m
Farmacia Antonelli
1,1 Km
Farmacia
1,9 Km
Ospedali Ospedali
Guardia Medica
780 m
Ospedale e Casa di Riposo Nobile Paolo Richiedei
860 m
Supermercati Supermercati
IperSimply
170 m
Familia Superstore
430 m
Italmark
570 m
Simply Market
3,0 Km
Negozi Negozi
Negozi
2,6 Km
Panificio F. Moretti
2,6 Km
Outlet Dolciario
2,7 Km
CMP
2,9 Km
Under Armour
2,9 Km
Bar Bar
Bar
490 m
Autogrill
2,9 Km
Ristoranti Ristoranti
Da Dina
140 m
Risto-Pub Cantagallo
240 m
Ristorante Mi Sushi
610 m
Trattoria Nuovo Rustichello
970 m
Il Gabbiano
1,4 Km
Mostra tutto

Caratteristiche

Rif.:
61147514
Piano:
Su più livelli di 2
Totale piani:
2
Box:
1
Posti auto:
3
Balconi:
2
Mostra tutto
Prezzo Prezzo
€ 435.000
Rata mutuo Rata mutuo
€ 2.065 / mese
Spese annue Spese annue
€ 0
Proponi il tuo prezzoProponi il tuo prezzo

Classe Energetica

F
F
F
F
F
F
F
F
F
EP globale non rinnovabile:
200.18 kW h/m² anno
EP globale rinnovabile:
3.68 kW h/m² anno
EP invernale del fabbricato:
EP estiva del fabbricato:
Anno di costruzione:
1982
Riscaldamento:
Autonomo
Tipo impianto:
A radiatori
Tipo alimentazione:
Metano

Ti interessa visionare l'immobile?

Fissa un appuntamento  Fissa un appuntamento

Richiedi informazioni

Clicca su Leggi per aprire l'informativa
* Questi campi sono obbligatori

Calcola il tuo mutuo

Semplice e senza impegno
Anticipo

( % )
Mutuo

( % )

pochi semplici passi

inserisci i tuoi dati
Questionario completato
Grazie per aver richiesto un appuntamento senza impegno con un nostro Consulente del Credito e Assicurativo.

Hai inserito correttamente tutti i dati necessari e a breve riceverai una e-mail con un link da convalidare per inviare i tuoi dati.
Affiliato
Studio Gussago Srl
Via Dante Alighieri, 16 25064 Gussago (BS)

Il nostro staff


  • Francesca Guerreschi
    Collaboratrice

  • Angelica Martinelli
    Coordinatrice

  • Maurizio Pulvirenti
    Affiliato

  • Diego Zadra
    Collaboratore
Via Dante Alighieri, 16 25064 Gussago (BS)
Zona: Franciacorta-Gussago-Cellatica
Mostra su mappa
Orari: Lunedì - Venerdì: 9.00|12.30 - 14.30|19.30 - Sabato: 9.00|12.30 - 14.30|16.00
Affiliato
Studio Gussago Srl
Via Dante Alighieri, 16 25064 Gussago (BS)

2026 Tecnocasa Franchising S.p.A. - P. IVA 08365160152 - Via Monte Bianco 60/A 20089 Rozzano (MI). Ogni agenzia ha un proprio titolare ed è autonoma. Privacy policy | Policy utilizzo | Cookie policy